家事も、育児も、ワンフロアで快適に。
白で統一された光あふれる家
群馬県・T様
家族構成:4人(夫婦、子ども2人)
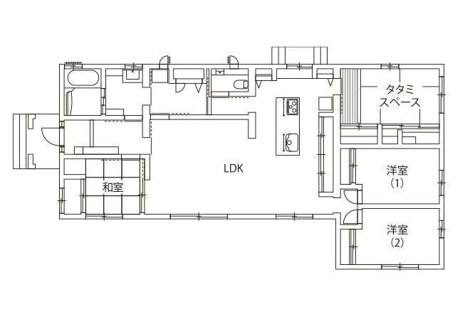
アパート住まいだったT様が、新居の建築を決められたのは二人目のお子様の誕生前でした。共働きで、家事・育児と仕事を両立する奥様は、炊事・就寝など1フロアで全て済むアパートの間取りの便利さを実感。新居にも、家事動線に工夫をこらした平屋を選びました。ご主人のご希望で、リビング・ダイニング・和室はすべて南向きに、白のフローリングにこだわってインテリアも統一。計画的に自然光をとりいれ、家じゅうが明るい気持ちのいい空間になりました。ご家族そろって、開放的な豊かな暮らしを楽しんでおられます。
「床から浮いている収納にして、下に照明をいれたかった」という奥様のご希望を叶えた玄関。床からのちょっとした空間が、視覚的にも広がりを感じさせます。たたきに設置した姿見も、空間をより広く見せる効果があります。
続きを読む
南側に配置したリビングには、あふれるほどの光が差し込みます。開口が大きい分、カーテンだと厚みがでてしまうので木製のブラインドを選んですっきりした印象に。屋根の傾斜と合わせて天井を高くするなど、開放感を演出する工夫が随所にあります。
続きを読む
キッチンの天板には、ラメが少し入った華やかな黒いタイプを選びました。「見た目で選んだけれど、意外に汚れも目立ちづらい」と奥様のお気に入り。壁側の引き戸の収納は、見せない収納に。家電や食器、分別用のゴミ箱もすべてしまえるうえ、扉を閉めるとすべて隠れてスッキリ。
続きを読む
子供が大きくなったら子供室として使用予定。現在はご主人のトレーニングルームとして使用しています。リビングと同じ白を基調にしているので明るい印象に。
続きを読む
もっともこだわったのは、キッチンから浴室まで一直線につながる家事室の動線。天井には電動で上下する物干し竿を設置。「洗濯したら、すぐここに干すので便利。手伝ってくれた主人もラクだねと言ってます。」また、クローゼットには、ご家族の洋服を収納しており、干した後すぐに仕舞えるところも魅力的。
続きを読む
リビングとつながる和室は、洋風の空間にもなじむように畳はスクエアタイプのものを選びました。窓の襖紙のプリーツスクリーンも、LDKとの印象を合わせて濃い赤茶色のものを選択。モダンな空間にしつらえました。
続きを読む
| 商品 | グランツーユー |
|---|---|
| 延床面積 | 1F 127.63㎡ |





































