植栽と灯りで街並みを美しく。
景観に配慮した賃貸併用住宅
東京都・H様
家族構成:3人(夫婦、お母様)
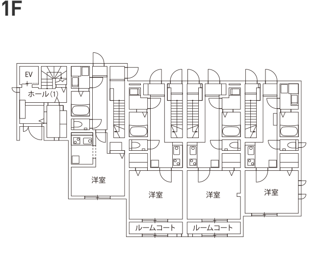
ご高齢になったお母様の日常生活をサポートするために、同居を決められたH様ご夫婦。別棟になっていたご自宅とお母様の住まいを取り壊し、二世帯が暮らす3階建ての賃貸併用住宅へと建て替えを決断されました。プランは、3階をH様とお母様の居住空間にし、1、2階を賃貸住宅に。長期に渡る経営のことも考え、H様が重視したのは建物の耐久性でした。「工場見学で、精度の高い施工方法や品質検査の様子を見て信頼性が高まった」ことがセキスイハイムの決め手だったそう。ご主人が生まれ育った街に貢献したいという思いから、植栽や外構にもこだわり、閑静な街並みになじむ重厚感のある建物が誕生しました。
3階の自宅部分は、回遊性のある広いLDKを中心に個室を配置。建物に凹凸を設け、南面からの光と風を取り込みやすくしています。奥様の念願だった対面キッチンにも、日中は正面の大きな窓からたっぷり光が差し込み、「とても気持ちがよい」とお気に入りです。
続きを読む
リビングのテレビボード背面には、陰影が美しい天然石張りのアクセントウォールを設置。壁の裏側には収納スペースがあり、キッチンと家事室を結ぶ裏動線にもなっています。「リビングから丸見えにならず、食材のストックを置く収納スペースもしっかり確保できて、とても便利」。
続きを読む
東南のいちばん日当たりのよい場所には、家事室を兼ねたワンちゃんの部屋を。「眺めがとてもよいので、洗濯やアイロンがけも気分が弾みます」と奥様。窓の外の景色を堪能しながらの家事は、想定外にはかどっていらっしゃるご様子。
続きを読む
2階の一室は、ピアノ教室として活用中。居住スペースを通らずに生徒さんを案内できるのがいいとH様。ちょっとした来客があった時にお通しする部屋としても、この空間が大活躍です。
続きを読む
「街の美観を保つ意味で、植栽は大切」と外構にこだわったご主人。「賃貸住宅として、入居者の方に選んでもらうためにも、“植栽の緑や、心地よい灯りでお出迎えする”ということを意識しました」という言葉には、オーナーとしての信念が伺えました。
続きを読む
| 商品 | デシオ |
|---|---|
| 延床面積 | 1F 156.35㎡ 2F 157.98㎡ 3F 116.11㎡ 合計 430.44㎡ |





































