家族も愛犬も、生活を楽しめる
遊び心のある洗練された住まい
東京都・H様
家族構成:3人(夫婦、長女)、犬2匹
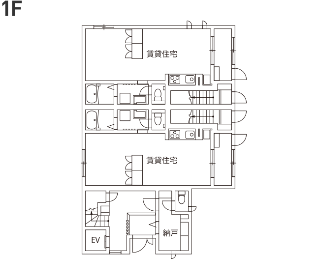
築17年の旧居を建て替えられたH様。すでに2度外壁を塗り替えていたことから、「今後もメンテナンス費用がかかるなら、思い切って建て替えよう」と決断されました。旧居は家族3人には広すぎると感じていたので、住居部分を以前よりコンパクトにし、スペースを活かして賃貸併用住宅に。家賃収入を新築の費用に充てることにしました。ハイムの決め手は「メンテナンスの手間が抑えられること。築30年のタイル外壁のお宅を拝見しましたが全然古さもないし、これなら大丈夫だと。スタッフの対応力も魅力でした」と語るH様。使いやすさだけでなく遊び心もあちこちに活かした新居は、人も愛犬も暮らしを存分に楽しめる住まいになりました。
奥様のこだわりの1つは家事動線の良さです。ゆとりのある広さを確保し、冷蔵庫など家電収納の配置も、誰かに手伝ってもらいやすいよう工夫しています。壁とカップボードの一部に張られた大胆なアクセントクロスは「遊び心がほしくて、ちょっと冒険してみました」と奥様のアイデア。
続きを読む
玄関を入ると、正面に飾られた木版画が目をひきます。壁に張られたスティックタイルは、光があたると陰影が美しく、お気に入りです。左手の格子は、玄関を入ったお客様の視線をまず正面の壁に集めるためのもの。おもてなしの工夫がなされたギャラリーのような玄関です。
続きを読む
ダイニングと洗面室から出入りできるバルコニーは、「南側だと夏場は暑くて遊べないので」と愛犬への想いから東側に設置しました。3Fにあるため人目を気にすることなく、ドッグランや洗濯干し、夕涼みなど多彩に活用されています。
続きを読む
リビングの隣には2匹の愛犬のために専用の部屋をつくりました。ソファを置いて、のんびりと愛犬と遊んであげられるようにしたこの空間は愛犬はもちろん、奥様とお嬢様もお気に入り。お嬢様が選ばれたターコイズ色のクロスが爽やかです。
続きを読む
3階は、廊下は設けずLDKを中心とした大空間を確保。空間を明るく広く見せたかったので白を基調にし、要所要所の壁をアクセントクロスやタイルで飾り、モダンな雰囲気に仕上げました。ダイニング側のバルコニーに面した大窓からたっぷり光が注ぎ込みます。
続きを読む
靴だけでなく愛犬の散歩グッズも収納できる、広々としたシューズインクローゼット。玄関を常に美しく、広々と使いたいというH様のご希望により設けられました。動線上に洗面とトイレもつくり、愛犬の散歩帰りなど便利に活用しています。
続きを読む
| 商品 | ライフプランニングデシオ |
|---|---|
| 延床面積 | 1F 102.96㎡ 2F 108.61㎡ 3F 90.56㎡ 計 302.13㎡ |





































